• 周六. 10 月 18th, 2025

基于S3C2440和ADS1256的地震数据采集系统电路解决方案-电路图讲解-电子技术方案

6 月 13, 2019

  本文为大家介绍以ARM内核S3C2440为处理器,24位自带模拟开关的ADS1256芯片为A/D转换和信号输入通道选择,利用其特性、工作原理来设计具有高精度、多通道、实时操作性强的地震数据采集系统电路。数据通过桥式低通滤波输入,有效地抑制了长导线共模信号,并且大大提高了整个电路抗电磁干扰能力,从而可以实现地震数据采集系统的高精度、高质量、低功耗和便携式等特点。   系统总体结构框图 电路总体结构如图1所示,采用三星公司生产的ARM9系列S2C2440微处理器作为核心控制芯片,由地震检波器输出微弱、复杂的地震信号首先经模拟信号调理电路的放大、跟随以及滤波等处理后,再通过控制模拟开关进行选择通道,然后再应用ADS1256进行模/数转换,采集到的数据是通过SPI总线的方式送入海量存储器中,以便以后查阅和分析。    

模拟信号调理电路 模拟信号调理电路主要包括地震微弱信号的滤波、放大等。地震信号首先通过桥式低通滤波构成的输入电路,然后再通过前置放大电路。   输入电路主要是起到RC阻抗匹配网络的作用,压制长导线传输中的共模信号,阻止高频信号,提高抗干扰能力,另外也对接收进来的妨碍有效波记录的干扰波进行压制,电路原理如图2所示。    

 前置放大电路主要由两级组成,两级采用直接耦合的方式连接,第一级把双端输入地震信号放大,然后单级输出,再通过第二级差分线性放大器,转换输出方式,为A/D转换提供双端输入差分信号,也进一步的消除了输入电路的共模信号,电路原理如图3所示。为保证输入端保持平衡状态,第一级两个输入端对地的电阻值应相等,为了降低共模电压放大倍数,一般使R7=R8,R9=R10。 

    

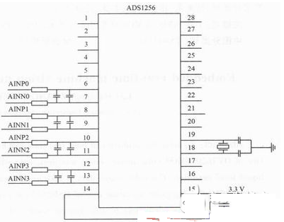
模/数转换电路 采用ARM处理器控制ADS1256作为模/数转换电路,ADS1256只能工作在SPI通信模式下。设计采用ARM处理器的通用I/O口来控制ADS1256片上寄存器,也可以通过串口读/写这些寄存器,通过控制ADS1256的CS端信号来选择是否开始转换。通过读取DRDY引脚的电平来表示转换是否已经完成,低电平时表明数据转换完成,高电平时表示数据转换未完成。从DOUT引脚读取最新转换数据,控制内部模拟开关寄存器来配置四通道差分输入,将AINO~AIN7作为输入端,AINCOM不用,一般接地就可以,其中PSEN3~PSEN0为差分信号的正输入端选择位,NSEL3~NSEL0为差分信号的负输入端选择位。用ADCON寄存器来配置输出时钟、传感器检测选择、程控放大倍数选择,CLK1,CLK0为输出时钟选择位。其中:00表示输出时钟关闭;01表示输出fCLKIN;10表示输出fCLKIN/2;11表示输出fCLKIN/4,主时钟由外部晶振提供,晶振选取7.68 MHz,PGA2~PGA0为程控增益放大器的放大倍数选择位:000=1,001=2,010=4,011=8,100=16,101=32,110=64,111=128,可以根据信号的强度来来配置寄存器。DIR7~DIR0为数据速率选择位,11110000=30 kS/s为默认值。这样可以通过软件编程控制各个寄存器来灵活的配置所需要的时钟输出、传感器检测选择、程控放大倍数、数据转换速率等。其控制电路连接如图4所示。     

 在PCB板布线时晶振必须靠近ADS1256,为保证起振并得到一个稳定的频率,须外接小于0.1μF的陶瓷电容,本系统取18 pF。  


外围接口电路 其主要接口电路包括触摸显示电路、存储电路和上位机通信电路等,基本与开发板上的接口电路相似,这里只作简单的文字叙述。电路主要采用扩展FLASH和SDRAM,用于系统的启动和运行程序的加载,其中FLASH用来保存用户的程序代码,SDRAM用来存储程序运行时的数据和少量数据。显示部分采用平板型结构的液晶显示器件,它具有显示信息量大、低压、低功耗、长寿命、无辐射、无污染的优良特性,其在显示领域占据了重要地位。一般使用间接访问的方式来实现控制器芯片与液晶显示模块间的电路连接,液晶显示模块的数据通常需要并行输入,这里需要应用串转并器件来串/并转换,为液晶显示提供并行输入,模块的读、写、片选、复位等控制信号由S3C2440的通用I/O引脚控制。选择高速USB总线传输技术的方式与上位机进行通信。这种实现必须要在S3C2440和专用USB通信驱动芯片及外围电路共同完成,为了方便USB接口的硬件调试,还须增加一个RS 232接口。                                          

。 (本文来源网络整理,目的是传播有用的信息和知识,如有侵权,可联系管理员删除)

版权声明:网站转载的所有的文章、图片、音频视频文件等资料的版权归版权所有人所有。如果本网所选内容的文章作者及编辑认为其作品不宜公开自由传播,或不应无偿使用,请及时联络我们,采取适当措施,避免给双方造成不必要的经济损失。